Beukenlaan 75

Beukenlaan 75

TWISK

verkocht

Ook uw woning of bedrijfspand succesvol verkopen? Neem dan contactmet ons op

Gratis waardebepaling

Omschrijving

Ruime, uitgebouwde eengezinswoning met zonnige tuin op het westen en vier slaapkamers!

Op een fijne en rustige locatie, vlak bij openbaar groen, scholen en voorzieningen, vindt u deze verzorgde en uitgebouwde middenwoning. De woning biedt verrassend veel leefruimte, een praktische indeling en een zonnige tuin op het westen – een heerlijke plek om tot rust te komen en te genieten van lange zomeravonden.

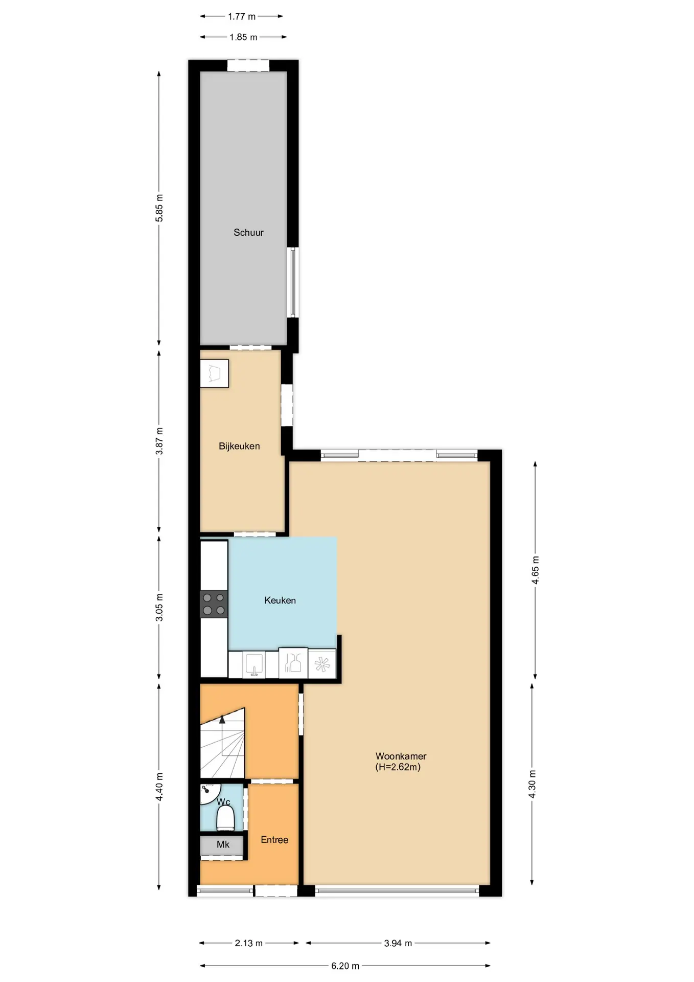
Bij binnenkomst valt direct de lichte en ruime woonkamer op. Aan de achterzijde is de woning in 2010 uitgebouwd, waardoor een royale woonkeuken is ontstaan met voldoende ruimte voor een grote eettafel. Een ideale plek om samen te komen met familie of vrienden. De keuken kijkt uit op de tuin, die dankzij de ligging op het westen volop zon biedt.
De eerste verdieping beschikt over drie goed bemeten slaapkamers en een nette badkamer. Op de tweede verdieping, bereikbaar via een vaste trap, bevindt zich een ruime vierde slaapkamer. Hier vindt u tevens handige bergruimte en de opstelling van de CV-ketel.

De aangebouwde schuur aan de achterzijde zorgt voor extra bergruimte of een fijne werkplek voor de klusser. De woning is in 2025 buitenom opnieuw geschilderd, waardoor deze netjes is onderhouden en direct te betrekken.
Dankzij de gunstige ligging nabij openbaar groen woont u hier rustig, maar met alle voorzieningen binnen handbereik.
Kortom: een goed onderhouden, ruime gezinswoning met veel leefruimte, een zonnige tuin en vier slaapkamers – een ideale plek om met het hele gezin van te genieten!

Bijzonderheden:
• zonnige tuin op het westen
• begane grond uitgebouwd
• 4 slaapkamers
• Energielabel C

Aanvaarding in overleg. Vraagprijs € 349.500,- k.k.
Lees meer

Kenmerken

Overdracht

Status
verkocht
Aanvaarding
in overleg

Bouw

Soort woning
woonhuis
Soort woonhuis
eengezinswoning
Type woonhuis
tussenwoning
Aantal woonlagen
3
Bouwjaar
1974
Onderhoud binnen
goed
Onderhoud buiten
goed
Voorzieningen
tv kabel, natuurlijke ventilatie
Isolatie
dakisolatie, muurisolatie, dubbel glas

Energie

Energielabel
C
Verwarming
cv ketel
Warm water
cv ketel
C.V.-ketel
gas gestookte combi-ketel uit 2007 van Remeha Quinta 28c, eigendom

Oppervlakten en inhoud

Woonoppervlakte
128 m²
Perceeloppervlakte
151 m²
Inhoud
427 m³
Inpandige ruimte oppervlakte
11 m²

Indeling

Aantal kamers
5

Buitenruimte

Tuin
achtertuin met een oppervlakte van 44 m² en is gelegen op het westen

Garage / Schuur / Berging

Garage
geen garage
Parkeergelegenheid
openbaar parkeren
Schuur/berging
aangebouwd steen

Foto's

Plattegronden

Locatie

Vraag een bezichtiging aan of neem contact met ons op