Ceder 90

Ceder 90

HOORN

verkocht

Ook uw woning of bedrijfspand succesvol verkopen? Neem dan contactmet ons op

Gratis waardebepaling

Omschrijving

DIRECT THUISKOMEN AAN DE CEDER 90 – RUIMTE, DUURZAAMHEID EN VEEL MOGELIJKHEDEN

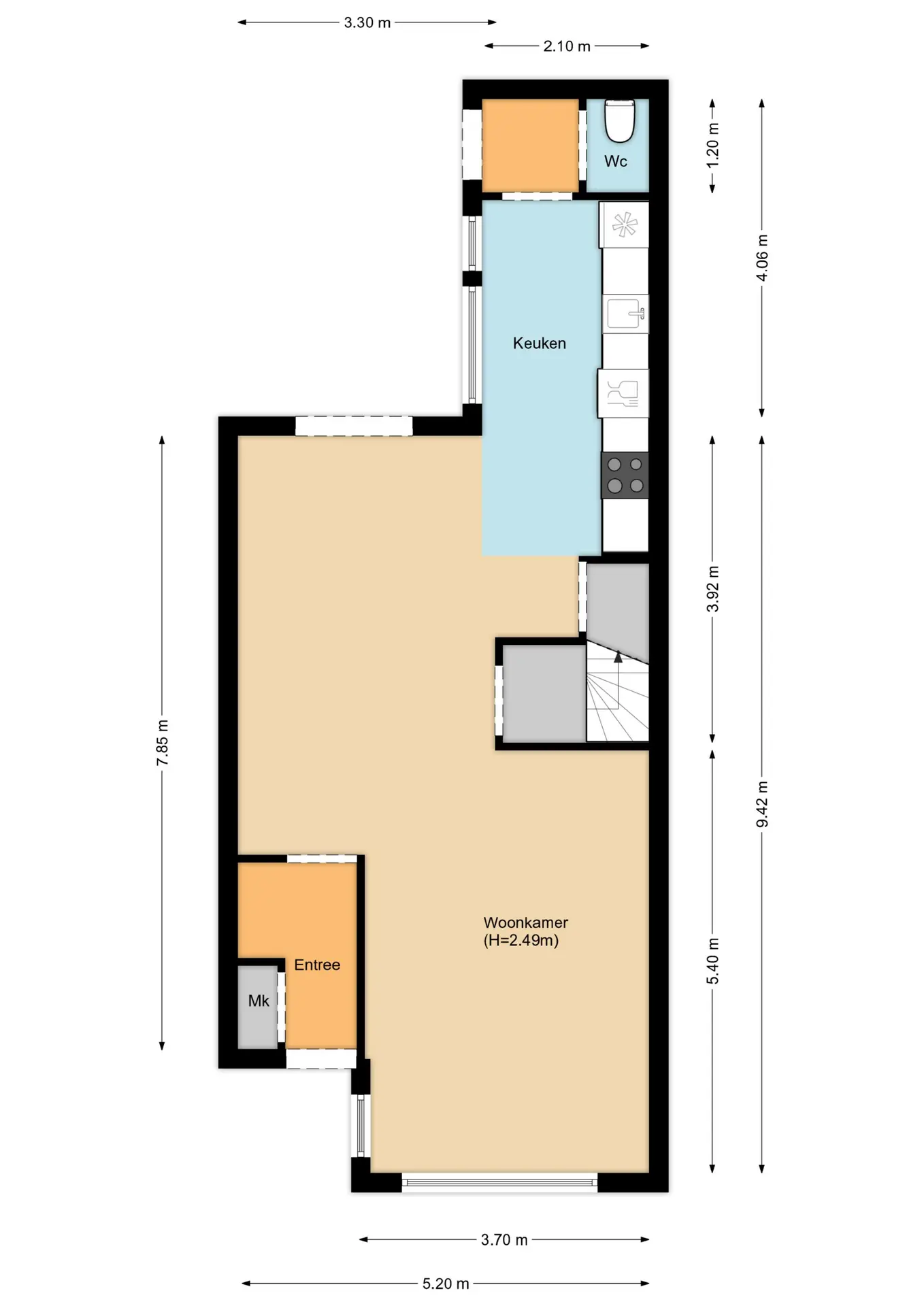
Ben jij op zoek naar een woning waar je zonder zorgen in kunt trekken, met genoeg ruimte voor het hele gezin én een multifunctioneel bijgebouw in de tuin? Dan mag je deze instapklare gezinswoning aan de Ceder 90 in Hoorn niet missen. Met ca. 120 m² woonoppervlakte, vier slaapkamers, een moderne keuken (2023), energielabel A én een volledig geïsoleerd bijgebouw van ca. 17 m², heb je hier alles in huis voor comfortabel en toekomstbestendig wonen.

WAT MAAKT DIT HUIS ZO BIJZONDER?

* Royale woonkamer – Dankzij de uitbouw van 1,5 meter en grote raampartijen met screens (2024) geniet je van een lichte, sfeervolle leefruimte met een massieve houten vloer.
* Moderne keuken (2023) – Compleet uitgerust met inductiekookplaat, afzuigkap, vaatwasser, koel-vriescombinatie en combi-oven. Klaar om uitgebreid te koken en samen te tafelen.
* Vier slaapkamers – Ruim, licht en praktisch ingedeeld, inclusief een tweede verdieping met dakkapel.
* Multifunctioneel bijgebouw (ca. 17 m²) – Volledig geïsoleerd en voorzien van water, elektra en verwarming. Perfect voor een praktijk aan huis, een inspirerend kantoor of een fijn gastenverblijf.
* Energiezuinig & duurzaam – Energielabel A, Brink heteluchtverwarming (2017) en 9 zonnepanelen (395 WP, eigendom). Lage energielasten én klaar voor de toekomst.
* Ruime achtertuin – Ca. 80 m² groot, gelegen op het zonnige noordwesten. Hier geniet je tot in de avond van de zon, ideaal voor gezellige barbecues en spelende kinderen.
* Extra bergruimte – Inclusief aparte berging (ca. 6 m²) en vernieuwde meterkast (2023).



HEERLIJK WONEN IN EEN FIJNE WIJK

Bij binnenkomst via de overdekte entree stap je direct de ruime hal binnen, met doorgang naar de woonkamer. De vernieuwde schuifpui (2024) verbindt de keuken met de tuin en maakt het binnen-buitenleven compleet. Op de eerste verdieping vind je drie goed bemeten slaapkamers en een moderne badkamer met ruime douche, tweede toilet en wastafelmeubel. De tweede verdieping biedt dankzij de dakkapel een volwaardige vierde slaapkamer én extra bergruimte.

En dat is nog niet alles: de woning ligt in een rustige en kindvriendelijke wijk, op loopafstand van NS-station Kersenboogerd, scholen, winkels en sportvoorzieningen. Binnen enkele minuten fiets je naar de historische binnenstad van Hoorn en via de uitvalswegen bereik je gemakkelijk Amsterdam en Enkhuizen.

DE BELANGRIJKSTE HIGHLIGHTS OP EEN RIJ

* Bouwjaar 1989
* Woonoppervlakte ca. 120 m²
* Perceel van 170 m², tuin van ca. 80 m² op het noordwesten
* Vier slaapkamers en moderne badkamer
* Keuken en toilet vernieuwd in 2023
* Schuifpui en screens vernieuwd in 2024
* Volledig geïsoleerd multifunctioneel bijgebouw (ca. 17 m²)
* Extra berging (ca. 6 m²)
* Energiezuinig: label A, Brink heteluchtverwarming (2017) en 9 zonnepanelen (395 WP, eigendom)

EEN WONING OM DIRECT VAN TE HOUDEN
Of je nu droomt van een fijne gezinswoning, een werkplek aan huis of een woning die helemaal klaar is voor de toekomst: Ceder 90 heeft het allemaal. Hier vind je ruimte, comfort en duurzaamheid in een rustige en gezellige omgeving.
Lees meer

Kenmerken

Overdracht

Status
verkocht
Aanvaarding
in overleg

Bouw

Soort woning
woonhuis
Soort woonhuis
eengezinswoning
Type woonhuis
tussenwoning
Aantal woonlagen
3
Bouwjaar
1989
Onderhoud binnen
goed
Onderhoud buiten
redelijk_tot_goed
Voorzieningen
dakraam, zonnepanelen
Isolatie
dubbel glas, volledig geisoleerd

Energie

Energielabel
A
Verwarming
hete lucht verwarming
Warm water
cv ketel

Oppervlakten en inhoud

Woonoppervlakte
120 m²
Perceeloppervlakte
170 m²
Inhoud
406 m³
Bergruimte oppervlakte
6 m²

Indeling

Aantal kamers
5

Buitenruimte

Ligging
in woonwijk
Tuin
achtertuin met een oppervlakte van 84 m² en is gelegen op het noordwesten

Garage / Schuur / Berging

Garage
geen garage
Parkeergelegenheid
openbaar parkeren
Schuur/berging
vrijstaand hout

Foto's

Plattegronden

Locatie

Downloads

Vraag een bezichtiging aan of neem contact met ons op