Cees Buddingh'hof 159

Cees Buddingh'hof 159

HOORN

vraagprijs

verkocht

Ook uw woning of bedrijfspand succesvol verkopen? Neem dan contactmet ons op

Gratis waardebepaling

Omschrijving

Unieke 2/1 kap woning met karakter, duurzaam, ruim én bijzonder vormgegeven!

Welkom in de Kersenboogerd in Hoorn, waar deze unieke twee-onder-een-kapwoning met inpandige garage en zonnige tuin op het zuiden direct je aandacht trekt. Met zijn opvallende ronde gevels en het scheepsachtige ontwerp, biedt deze woning niet alleen veel ruimte, maar ook een karakter en uitstraling die je zelden ziet. Hier woon je écht anders dan anderen!

De woning is gebouwd in 1996 onder een markante architectuur met afgeronde vormen en een onderhoudsvriendelijke gevelbekleding. De woning is gerust energiezuinig te noemen en met een energielabel A, een hybride warmtepomp en 8 zonnepanelen – klaar voor de toekomst!
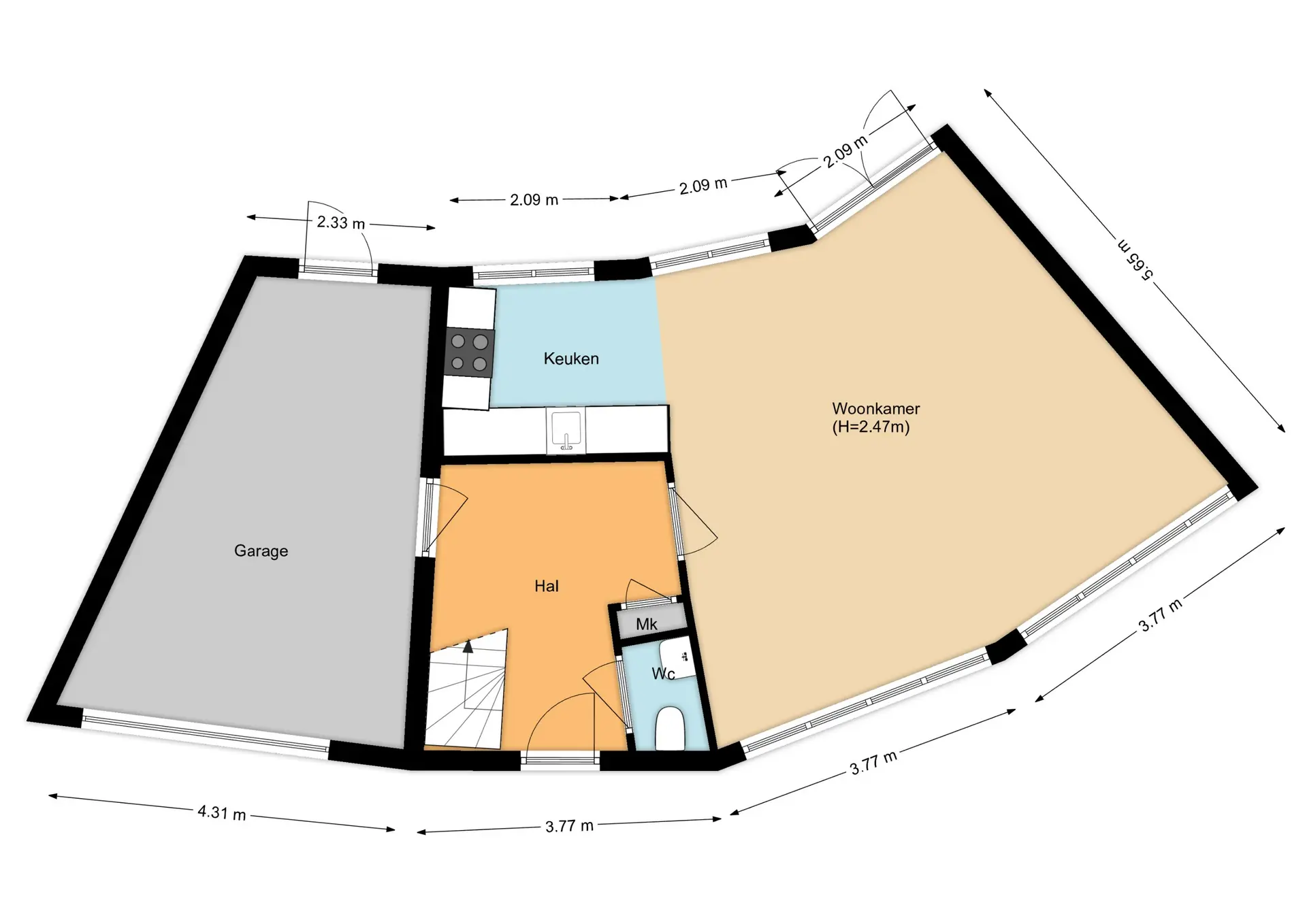
Aan ruimte geen gebrek. Een inpandige garage met toegang tot hal en tuin. 4 slaapkamers en een ruimte badkamer met ligbad en 2e toilet.

De woning ligt in een rustige, kindvriendelijke omgeving met scholen, sportverenigingen, winkels en het openbaar vervoer op korte afstand. Binnen enkele minuten bereik je bovendien de gezellige binnenstad van Hoorn en de levendige haven – perfect voor een middagje winkelen of een wandeling langs het water.
Klaar om er jouw thuis van te maken

Hoewel deze woning veel te bieden heeft, verdient hij op sommige punten wat aandacht. Enkele kozijnen vragen om onderhoud maar met een beetje modernisering kun je deze woning volledig naar jouw smaak maken. Zie het als een unieke kans om een bijzonder huis om te toveren tot jouw droomwoning!

Kortom: Zoek jij een huis dat nét even anders is, duurzaam en met volop ruimte voor je gezin of hobby’s? Dan is dit jouw kans!

Neem snel contact op voor een bezichtiging – deze woning moet je echt van binnen zien om de sfeer te ervaren!

Bijzonderheden:
• Inpandige garage
• 4 slaapkamers
• Tuin op het zuiden
• Energielabel A, zonnepanelen en een hybride warmtepomp
• Centrale ligging

Aanvaarding: in overleg
Vraagprijs: € 425.000,- k.k.
Lees meer

Kenmerken

Overdracht

Status
verkocht
Aanvaarding
in overleg

Bouw

Soort woning
woonhuis
Soort woonhuis
eengezinswoning
Type woonhuis
twee onder een kapwoning
Aantal woonlagen
2
Bouwjaar
1996
Onderhoud binnen
redelijk
Onderhoud buiten
redelijk
Voorzieningen
mechanische ventilatie, tv kabel, zonnepanelen
Isolatie
dakisolatie, muurisolatie, vloerisolatie, dubbel glas

Energie

Energielabel
A
Verwarming
cv ketel, vloerverwarming gedeeltelijk, warmtepomp
Warm water
cv ketel
C.V.-ketel
gas gestookte combi-ketel uit 2012 van Atag, eigendom

Oppervlakten en inhoud

Woonoppervlakte
119 m²
Perceeloppervlakte
216 m²
Inhoud
453 m³
Inpandige ruimte oppervlakte
19 m²

Indeling

Aantal kamers
5

Buitenruimte

Ligging
in woonwijk
Tuin
achtertuin met een oppervlakte van 80 m² en is gelegen op het zuiden

Garage / Schuur / Berging

Garage
inpandige garage
Parkeergelegenheid
openbaar parkeren, op eigen terrein

Foto's

Plattegronden

Locatie

Downloads

Vraag een bezichtiging aan of neem contact met ons op