Dorpsstraat 111

Dorpsstraat 111

WINKEL

verkocht

Ook uw woning of bedrijfspand succesvol verkopen? Neem dan contactmet ons op

Gratis waardebepaling

Omschrijving

Omschrijving
Deze karakteristieke vrijstaande woning aan de Dorpsstraat in Winkel is door de vele raampartijen zeer licht en beschikt over 2 slaapkamers onder het schuine dak op de eerste verdieping. Aan drie kanten van de woning is er de gelegenheid om te genieten van het buitenleven met aan de achterzijde een vrij uitzicht.

Deze uiterst charmante woning combineert de sfeer van weleer met het hedendaags wooncomfort. De houtkachel geeft een fijne warmte tijdens de koelere dagen. Dit is een woning voor diegene die wel van klussen houdt! De woning kan uiteraard direct bewoond worden echter zijn er aandachtspunten voor het verbeteren van de woning.

Op de woning rust een niet bewoningsclausule echter heeft de verkopende partij zoveel mogelijk gegevens proberen te verzamelen welke zijn weergegeven.

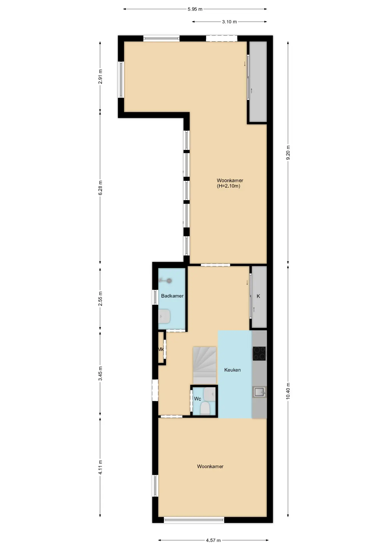
De garage aan de achterzijde is omgebouwd tot woonruimte en met een serre verbonden aan de originele woning. Hierdoor is een riante benedenverdieping ontstaan welke de bewoner(s) meerdere indelingsmogelijkheden geeft. Dus gelijkvloers wonen behoort zeker tot de mogelijkheden. Zoals van oudsher gebruikelijk is, bevindt zich de badkamer beneden en is het toilet apart. Dat geeft een groter comfort.

De ruime en open keuken in het midden nodigt absoluut uit om lekker samen te koken. Op dit moment staat de eettafel in de serre en is de voormalige garage in gebruik als werkkamer.
Aan de voorzijde van de woning bevindt zich de gezellige zitkamer.

De open houten trap brengt je naar de eerste verdieping waar twee gelijke slaapkamers zijn.

De Dorpsstraat is een ideale en zeker strategische locatie in het dorp. Vlak bij het winkelcentrum met gelukkig nog de traditionele specialiteiten winkels zoals de slager, poelier, visboer en bakker. Uiteraard is er ook een Supermarkt aanwezig. De uitvalswegen zijn makkelijk en snel bereikbaar waardoor de steden of de Noordzeekust goed aan te rijden is.

Deze woning biedt een perfecte plek voor diegene die houdt van rust en vrijheid. De woning is gelegen op een prettig perceel van 210 m² eigen grond met meerdere buitenplekken waardoor er altijd wel een schaduw of zon plek te vinden is.

Ben je geïnteresseerd maak dan gelijk een afspraak voor een persoonlijke bezichtiging. Parkeren doet u dan op de openbare weg voor of vlak bij de woning.

BIJZONDERHEDEN:
* Sfeervolle vrijstaande woning aan de Dorpsstraat van Winkel
* Stijlvolle en lichte woonkamer met open keuken
* Zeer ruime begane grond met houtkachel
* Mogelijkheid tot gelijkvloers wonen
* Om de woning te bereiken maak je gebruik van recht van overpad
* Aantal zaken, o.a. schilder- en houtwerk, vereisen onderhoud
* Oplevering is gewenst voorjaar 2026
* Landelijke ligging met voorzieningen nabij
* Ideale ligging bij uitvalswegen richting Schagen, Alkmaar en A'dam
* Het complete winkelcentrum in Nieuwe Niedorp op fietsafstand
* Ultieme kans! Landelijk gelegen woning met karakter!
Lees meer

Kenmerken

Overdracht

Status
verkocht
Aanvaarding
in overleg

Bouw

Soort woning
woonhuis
Soort woonhuis
eengezinswoning
Type woonhuis
vrijstaande woning
Aantal woonlagen
2
Bouwperiode
VANAF_1906_TM_1930
Onderhoud binnen
goed
Onderhoud buiten
redelijk
Voorzieningen
tv kabel, schuifpui, natuurlijke ventilatie
Isolatie
gedeeltelijk dubbel glas

Energie

Energielabel
F
Verwarming
cv ketel
Warm water
cv ketel
C.V.-ketel
gas gestookte combi-ketel uit 2012 van Intergas, eigendom

Oppervlakten en inhoud

Woonoppervlakte
102 m²
Perceeloppervlakte
210 m²
Inhoud
292 m³

Indeling

Aantal kamers
5

Buitenruimte

Ligging
aan water, aan rustige weg, beschutte ligging
Tuin
zijtuin met een oppervlakte van 50 m² en is gelegen op het zuidwesten

Garage / Schuur / Berging

Garage
geen garage
Parkeergelegenheid
openbaar parkeren

Foto's

Plattegronden

Locatie

Vraag een bezichtiging aan of neem contact met ons op