Droge Wijmersweg 5 082

Droge Wijmersweg 5 082

WERVERSHOOF

verkocht

Ook uw woning of bedrijfspand succesvol verkopen? Neem dan contactmet ons op

Gratis waardebepaling

Omschrijving

Omschrijving:

Vrijstaande levensloopbestendige bungalow aan het water – rust, ruimte en comfort!

Op zoek naar comfort, privacy en wonen aan het water? Deze vrijstaande bungalow met garage en eigen oprit biedt het allemaal – en meer! Gelegen op een rustige, groene locatie aan doorgaand vaarwater, is dit de ideale plek voor wie gelijkvloers wil wonen zonder in te leveren op ruimte en vrijheid.

Deze levensloopbestendige woning beschikt over een ruime slaapkamer én een moderne badkamer op de begane grond – ideaal voor wie graag alles binnen handbereik wil hebben. De lichte tuingerichte woonkamer met uitzicht op het water geeft een oase aan rust en ruimte.

Indeling

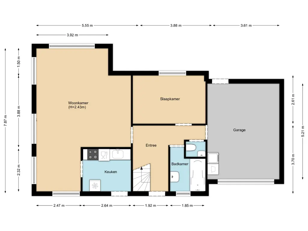
Begane grond
Entree/hal, meterkast, trapopgang naar de eerste verdieping, toegang tot de woonkamer, tevens bereikt u via de hal de badkamer met ligbad en een royale slaapkamer ideaal voor diegene die gelijkvloers wil wonen. De woonkamer is heerlijk ruim en licht doormiddel van de grote raampartijen en via de kunststof schuifpui stapt u de fraai aangelegde tuin in. De fijne keuken is netjes uitgevoerd en voorzien van diverse apparatuur.

Eerste etage
Via de vaste trap komt u op de eerste etage hier treffen we een tweetal slaapkamers en de tweede badkamer, welke voorzien is van een inloopdouche met stoomcabine en toilet.

Tuin
Evenals de gehele woning is ook de tuin keurig en verzorgd aangelegd. Door de grote raampartijen en de schuifpui heeft een heerlijke connectie met de tuin door de divers aangelegde vlonderpartijen is het hier goed toeven en kunt u lekker aan het water genieten van de ondergaande zon, of nog beter lekker met de boot erop uit het geheel is immers gelegen aan doorgaand vaarwater.

Bent u net zo enthousiast over deze woning? Bel voor een afspraak dan begeleid ik u persoonlijk rond.

Bijzonderheden:

• levensloop bestendig wonen
• Doorgaand vaarwater
• Garage, eigen parkeergelegenheid
• Kunststof kozijnen
• Ruim perceel
• Nabij Ijsselmeer
Lees meer

Kenmerken

Overdracht

Status
verkocht
Aanvaarding
in overleg

Bouw

Soort woning
woonhuis
Soort woonhuis
bungalow
Type woonhuis
vrijstaande woning
Aantal woonlagen
2
Bouwjaar
1993
Onderhoud binnen
goed_tot_uitstekend
Onderhoud buiten
goed_tot_uitstekend
Voorzieningen
mechanische ventilatie, tv kabel, buitenzonwering, rookkanaal, schuifpui, dakraam
Isolatie
dakisolatie, muurisolatie, vloerisolatie, dubbel glas

Energie

Energielabel
C
Verwarming
cv ketel
Warm water
cv ketel
C.V.-ketel
gas gestookte cv-ketel uit 2013 van intergas, eigendom

Oppervlakten en inhoud

Woonoppervlakte
126 m²
Perceeloppervlakte
542 m²
Inhoud
417 m³
Inpandige ruimte oppervlakte
19 m²

Indeling

Aantal kamers
4

Buitenruimte

Ligging
aan water, aan rustige weg, beschutte ligging, aan vaarwater
Tuin
achtertuin met een oppervlakte van 300 m² en is gelegen op het noordwesten

Garage / Schuur / Berging

Garage
inpandige parkeerplaats
Parkeergelegenheid
openbaar parkeren, parkeergarage, op eigen terrein
Schuur/berging
aangebouwd hout

Foto's

Plattegronden

Locatie

Downloads

Vraag een bezichtiging aan of neem contact met ons op