Han Hoekstrahof 81

Han Hoekstrahof 81

HOORN

verkocht

Ook uw woning of bedrijfspand succesvol verkopen? Neem dan contactmet ons op

Gratis waardebepaling

Omschrijving

Royale woning met verrassende indeling, energielabel A én een zonnige & ruime tuin

Ben je op zoek naar een energiezuinige woning met een speelse en verrassende indeling? Dan is Han Hoekstrahof 81 in Hoorn absoluut een kijkje waard. Deze zeer goed onderhouden gezinswoning beschikt over drie slaapkamers, een keurige leefkeuken en badkamer, een fraaie achtertuin én energielabel A. Dankzij de rechte muren en het platte dak geniet je bovendien van optimaal gebruik van de ruimte.

Indeling
Via de voortuin kom je binnen in de hal met een inbouwkast. De hal biedt toegang tot het eerste toilet en een eerste (slaap)kamer, die eventueel zeer geschikt is om in te richten als werkkamer. Aan de achterzijde van de woning bevindt zich de riante leefkeuken met vloerverwarming, deze biedt genoeg plek voor een grote eettafel – de ideale plek voor lange avonden tafelen. De begane grond is voorzien van een keurige tegelvloer.

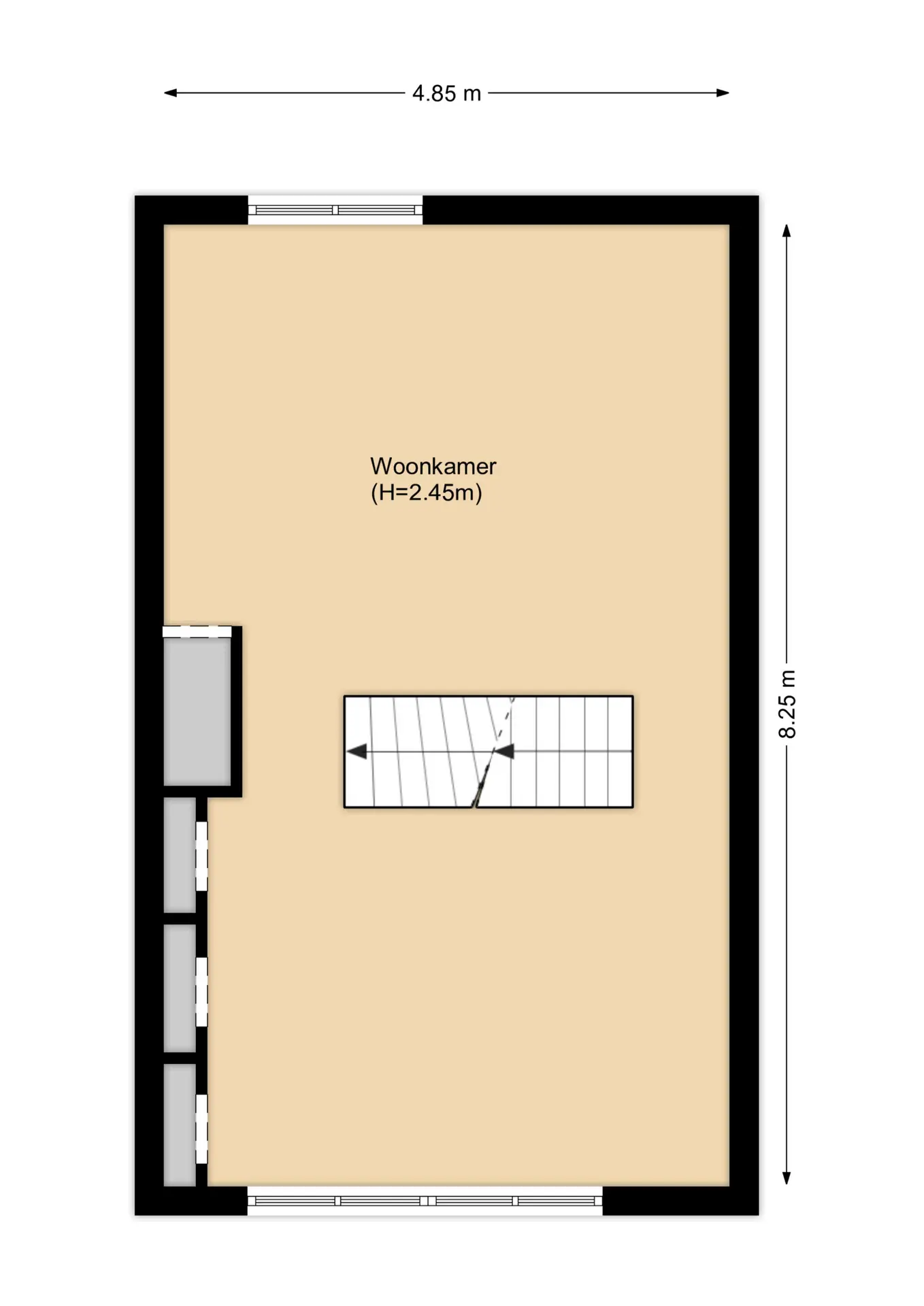
De eerste verdieping verrast met een lichte en ruime woonverdieping van maar liefst ca. 40 m². Dankzij de grote raampartijen komt er veel daglicht binnen en voelt de woonkamer heerlijk ruimtelijk aan. Hier kun je een fijne zitkamer inrichten met uitzicht op de omgeving. De gehele verdieping is voorzien van een mooie houten vloer.

Op de tweede verdieping bevinden zich twee zeer royale slaapkamers, de badkamer en een aparte ruimte voor de wasmachine en droger. De badkamer is keurig afgewerkt en voorzien van een ligbad met douche, een tweede toilet en een wastafelmeubel. Het geheel is netjes getegeld in neutrale kleurstelling.

Energiezuinig en comfortabel
Deze woning is goed onderhouden en voorzien van goede isolatie. Met energielabel A woon je hier comfortabel én toekomstbestendig, terwijl de energielasten laag blijven. De woning wordt verwarmd middels een C.V. ketel van het merk Vaillant uit 2013.

Buitenruimte
De achtertuin is fraai aangelegd en biedt alle ruimte om te ontspannen, te spelen of te genieten van het buitenleven. De tuin is maar liefst ca. 17 meter diep en is gelegen op het zonnige noordwesten. Verder beschikt de tuin over een ruime berging en een achterom.

Ligging
Han Hoekstrahof ligt in de populaire wijk Kersenboogerd: een rustige en kindvriendelijke omgeving met veel groen en speelgelegenheden. Scholen, winkels, openbaar vervoer en sportvoorzieningen zijn allemaal dicht bij, en met de fiets sta je binnen korte tijd in het centrum van Hoorn.

Pluspunten op een rij:
• Energielabel A
• Verrassende indeling met lichte woonkamer op de eerste verdieping
• Drie royale slaapkamers
• Keurige leefkeuken en badkamer
• Fraaie voor- en achtertuin
• Rechte muren en plat dak, optimaal ruimtegebruik
• Aparte ruimte voor de wasmachine en droger
• Veel opbergruimte vanwege de vaste kasten
• Kindvriendelijke ligging, voorzieningen dichtbij

Kortom: een instapklare en speels ingedeelde woning die uitblinkt in ruimte en licht. Kom kijken en laat je verrassen door de mogelijkheden!
Lees meer

Kenmerken

Overdracht

Status
verkocht
Aanvaarding
in overleg

Bouw

Soort woning
woonhuis
Soort woonhuis
eengezinswoning
Type woonhuis
tussenwoning
Aantal woonlagen
3
Bouwjaar
1996
Bouwperiode
VANAF_1991_TM_2000
Onderhoud binnen
goed
Onderhoud buiten
goed
Isolatie
dubbel glas, volledig geisoleerd

Energie

Energielabel
A
Verwarming
cv ketel
Warm water
cv ketel
C.V.-ketel
gas gestookte cv-ketel uit 2013 van Vaillant, eigendom

Oppervlakten en inhoud

Woonoppervlakte
120 m²
Perceeloppervlakte
146 m²
Inhoud
396 m³
Bergruimte oppervlakte
8 m²

Indeling

Aantal kamers
5

Buitenruimte

Ligging
in woonwijk
Tuin
achtertuin met een oppervlakte van 85 m² en is gelegen op het noordwesten

Garage / Schuur / Berging

Garage
geen garage
Parkeergelegenheid
openbaar parkeren
Schuur/berging
vrijstaand hout

Foto's

Plattegronden

Locatie

Downloads

Vraag een bezichtiging aan of neem contact met ons op