Paardebloem 73

Paardebloem 73

ZWAAG

verkocht

Ook uw woning of bedrijfspand succesvol verkopen? Neem dan contactmet ons op

Gratis waardebepaling

Omschrijving

Starters en jonge gezinnen opgelet! Ben je op zoek naar een instapklare hoekwoning op een fijne, centrale locatie? Dan is Paardenbloem 73 in Zwaag misschien wel jouw nieuwe thuis! Gelegen in de geliefde wijk Risdam-Noord, vind je hier een keurig onderhouden woning met een lichte woonkamer, nette badkamer, 4-tal slaapkamers en een prachtige tuin op het zuidwesten.
De woning ligt in een rustig hofje zonder autoverkeer, ideaal voor wie van privacy en een veilige omgeving houdt. Parkeren kan in de directe omgeving, en met winkelcentrum De Korenbloem, sportcentrum De Opgang, scholen en uitvalswegen naar de A7 in de buurt, is de locatie perfect voor een comfortabel dagelijks leven.

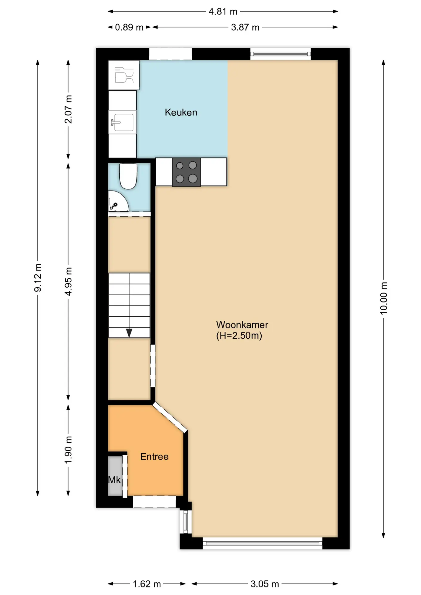
Begane grond:
Entree, hal, meterkast, lichte woonkamer, tussenhal met toilet en de trapopgang naar de 1e verdieping, open keuken in L-vormige opstelling met 4-pits gaskookplaat, oven, afzuigkap en een vaatwasser. De achtertuin is gelegen op het zonnige zuid-westen, is netjes aangelegd in via de steeg achterom te bereiken.

1e verdieping: overloop, 2-tal slaapkamers aan de achterzijde en een ruime slaapkamer aan de voorzijde, nette badkamer met wastafel, douche en een toilet.

2e verdieping: overloop met opstelling van de C.V. ketel (Intergas, 2010), aansluitingen wasmachine en droger. Aansluitend de 4e slaapkamer.

Pluspunten van deze woning:

- Zonnige, diepe tuin op het zuidwesten;
- 4-tal slaapkamers;
- Gelegen in een autovrij hofje, ideaal voor rust en veiligheid

Kortom, een perfecte starterswoning op een geweldige locatie! Plan snel een bezichtiging en laat je verrassen.

Aanvaarding: in overleg
Vraagprijs € 350.000,- k.k.
Lees meer

Kenmerken

Overdracht

Status
verkocht
Aanvaarding
in overleg

Bouw

Soort woning
woonhuis
Soort woonhuis
eengezinswoning
Type woonhuis
eindwoning
Aantal woonlagen
3
Bouwjaar
1980
Onderhoud binnen
goed
Onderhoud buiten
goed
Voorzieningen
tv kabel, dakraam
Isolatie
dakisolatie, muurisolatie, hr glas

Energie

Energielabel
C
Verwarming
cv ketel
Warm water
cv ketel
C.V.-ketel
gas gestookte combi-ketel uit 2010 van Intergas HRE 36/30, eigendom

Oppervlakten en inhoud

Woonoppervlakte
100 m²
Perceeloppervlakte
110 m²
Inhoud
352 m³
Bergruimte oppervlakte
5 m²

Indeling

Aantal kamers
5

Buitenruimte

Ligging
aan rustige weg, in woonwijk
Tuin
achtertuin met een oppervlakte van 54 m² en is gelegen op het westen

Garage / Schuur / Berging

Garage
geen garage
Parkeergelegenheid
openbaar parkeren
Schuur/berging
vrijstaand hout

Foto's

Plattegronden

Locatie

Downloads

Vraag een bezichtiging aan of neem contact met ons op