Rembrandtstraat 38

Rembrandtstraat 38

ZAANDAM

vraagprijs

verkocht

Ook uw woning of bedrijfspand succesvol verkopen? Neem dan contactmet ons op

Gratis waardebepaling

Omschrijving

Vrijstaande, charmante jaren '30 woning, ideaal gelegen in Zaandam.

Gelegen in de Schilders- en Waddenbuurt vindt u deze charmante jaren 30 woning. De woning is gebouwd omstreeks 1930 op een perceel van 121 m2 eigen grond.
De woning is voorzien van traditionele glas-in-loodramen.
Een aantal pluspunten van de woning zijn; de ruime woonkamer, 4 slaapkamers verdeeld over 2 woonlagen, ruime badkamer met dubbele wastafel, royale tuin voor stadsbegrippen en tevens is de woning centraal gelegen in Zaandam.

In de directe nabijheid vindt u sportgelegenheden, scholen, openbare vervoer (zowel bus als treinvervoer) en supermarkten voor uw dagelijkse benodigdheden. Daarnaast zijn er diverse uitvalswegen richting Purmerend/Hoorn en Amsterdam (A7/A8).

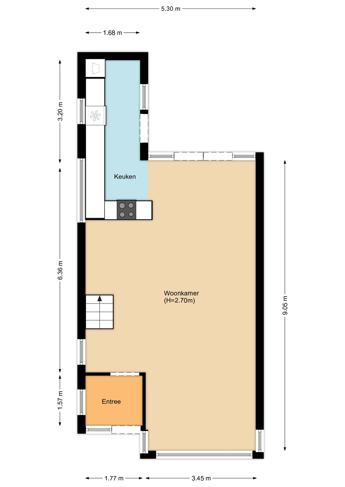
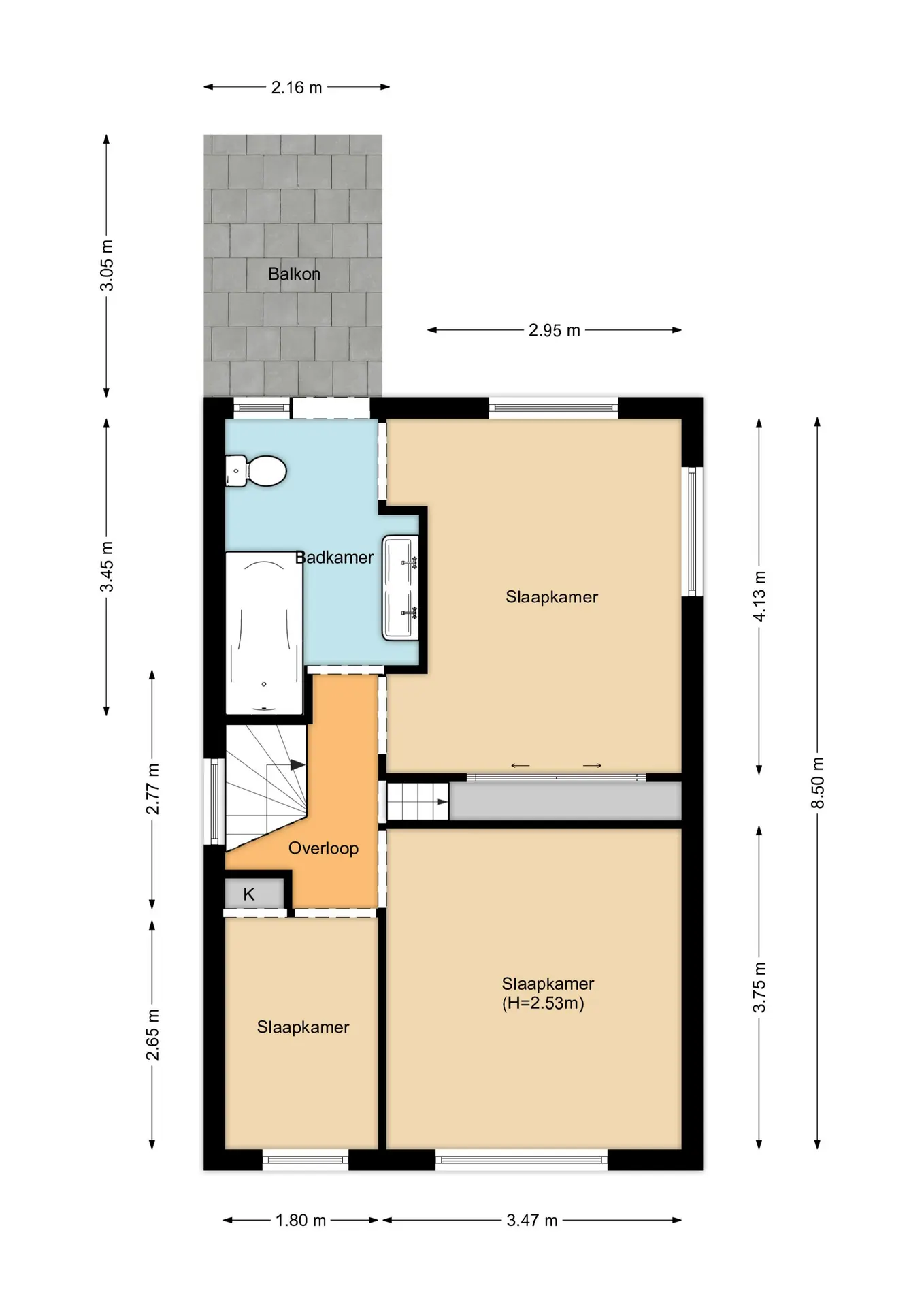
Indeling:
Begane grond: entree, hal, meterkast, lichte woonkamer met ramen aan de voor- en achterzijde en tevens in de zijgevel heeft u veel lichtinval, de woonkamer is voorzien van een monumentale gashaard en openslaande deuren naar de achtertuin. Aansluitend treft u de keuken met heteluchtoven, inductie kookplaat, vaatwasser en koelkast. De achtertuin is bereikbaar via een achterdeur bij de keuken, de openslaande deuren in de woonkamer en via de zijtuin langs de woning. De tuin is uitstekend onderhouden en hier treft hier nog een houten berging aan.

Eerste verdieping: vanuit de trap in de woonkamer bereikt u de eerste verdieping. Op de eerste verdieping bevinden zich 3 ruime slaapkamers en de badkamer. Op de overloop van de eerste verdieping bevindt zich een raam in traditioneel glas-in-lood. De badkamer is voorzien van toilet, dubbele wastafel, douche en bubbelbad. Via de badkamer is het dakterras bereikbaar.

Tweede verdieping: bereikbaar via een vaste trap. Hier treft u de vierde slaapkamer voorzien van een wastafel, tevens treft u aan de andere zijde van de tweede verdieping voldoende opbergruimte. De slaapkamer is rijk voorzien met ramen waardoor u voldoende lichtinval krijgt in de ruimte.

Bijzonderheden:
- Bouwjaar 1930
- 114 m2 woonoppervlakte
- 121 m2 perceeloppervlakte
- 4 slaapkamers
- Dakterras
- Energielabel D
- C.V. ketel (Remeha, 2022)
- Gunstige ligging in Zaandam
- Openbaar parkeren voor de deur.
- Fundering van de woning wordt gemonitord middels meetbouten, positief meetrapport aanwezig.

Bent u net zo enthousiast als wij zijn?
Neem dan snel contact op voor een bezichtiging.

Vraagprijs: € 500.000.- k.k.
Aanvaarding: in overleg
Lees meer

Kenmerken

Overdracht

Status
verkocht
Aanvaarding
in overleg

Bouw

Soort woning
woonhuis
Soort woonhuis
eengezinswoning
Type woonhuis
vrijstaande woning
Aantal woonlagen
3
Bouwjaar
1930
Bouwperiode
VANAF_1906_TM_1930
Onderhoud binnen
goed
Onderhoud buiten
goed
Voorzieningen
mechanische ventilatie, tv kabel, dakraam, natuurlijke ventilatie
Isolatie
dakisolatie, vloerisolatie, grotendeels dubbelglas

Energie

Energielabel
D
Verwarming
cv ketel, allesbrander
Warm water
cv ketel, geiser eigendom
C.V.-ketel
gas gestookte combi-ketel uit 2022 van Remeha, eigendom

Oppervlakten en inhoud

Woonoppervlakte
114 m²
Perceeloppervlakte
121 m²
Inhoud
434 m³
Bergruimte oppervlakte
4 m²
Buitenruimte oppervlakte
7 m²

Indeling

Aantal kamers
5

Buitenruimte

Ligging
aan rustige weg, in woonwijk
Tuin
achtertuin met een oppervlakte van 63 m² en is gelegen op het westen

Garage / Schuur / Berging

Garage
geen garage
Parkeergelegenheid
openbaar parkeren
Schuur/berging
vrijstaand hout

Foto's

Plattegronden

Locatie

Vraag een bezichtiging aan of neem contact met ons op