Schoolsteeg 12

Schoolsteeg 12

HOORN

verkocht

Ook uw woning of bedrijfspand succesvol verkopen? Neem dan contactmet ons op

Gratis waardebepaling

Omschrijving

Karakteristieke stadswoning uit 1605 in hartje Hoorn – volledig gemoderniseerd met behoud van sfeer

Op zoek naar een unieke woning met karakter én comfort? Deze charmante stadswoning uit 1605 ligt op een toplocatie in het centrum van Hoorn, op loopafstand van gezellige terrassen, winkels en horeca. De woning ademt historie, maar is de afgelopen jaren met zorg en stijl gerenoveerd en gemoderniseerd.

Sfeervol wonen met authentieke details en modern gemak

Bij binnenkomst voel je direct de warme, huiselijke sfeer.

Originele elementen zijn behouden, terwijl de woning in de afgelopen jaren volledig is aangepakt:
• 2019: Nieuwe keuken, vernieuwd leidingwerk, en strakke, moderne wandafwerking (gestuct).
• 2020: Nieuwe gevelbekleding aan de achterzijde, nieuwe dubbele openslaande tuindeuren, verbeterde isolatie.
• 2021: Complete vernieuwing van de badkamer, het toilet én de dakbedekking van het eerste platte dak.
• 2022: De knusse stadstuin is aangelegd – een heerlijke zonnige plek midden in de binnenstad.
• 2025: De dakgoot is volledig vernieuwd en er is een nieuw Velux dakraam geplaatst in de voorste slaapkamer.

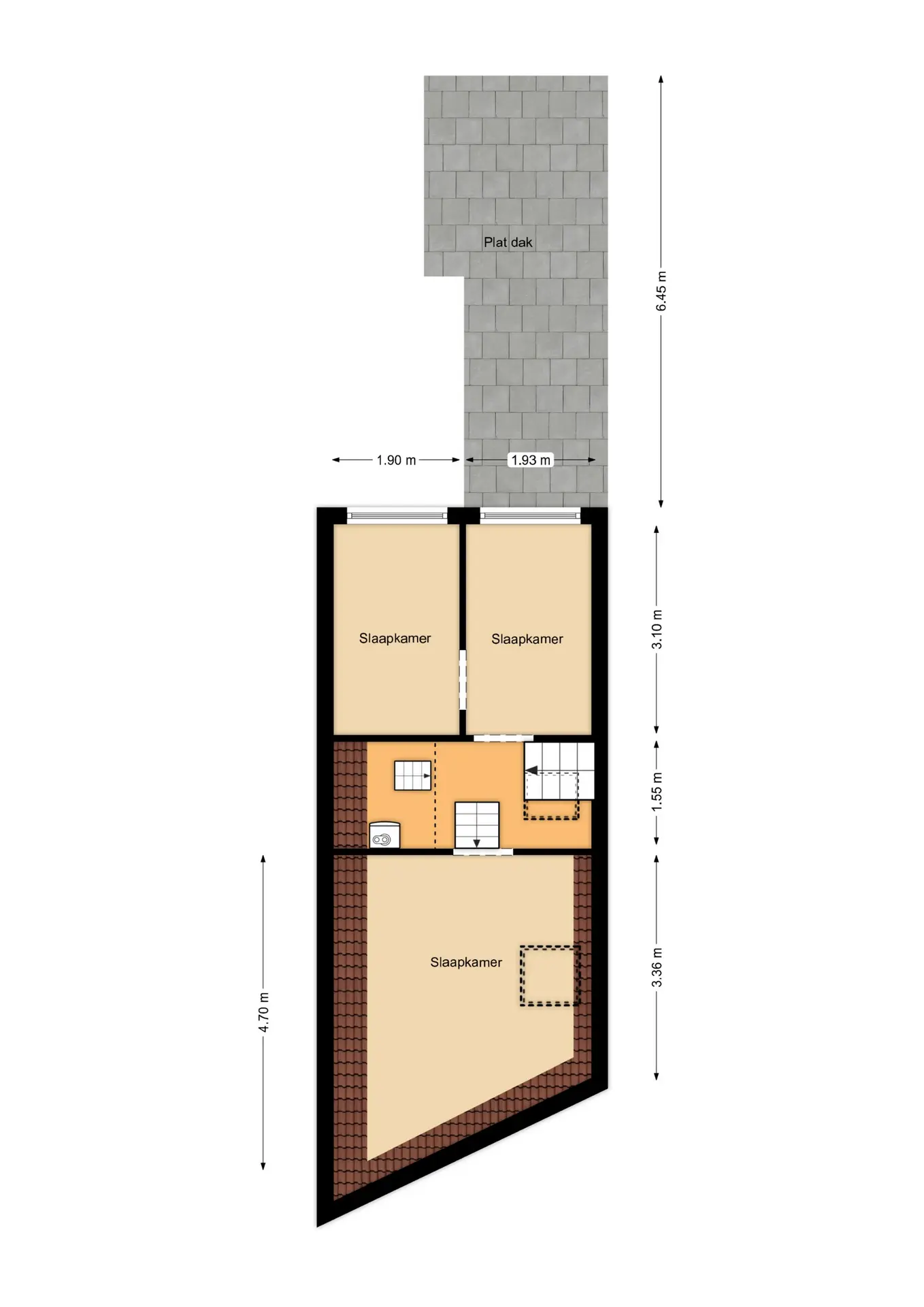
Indeling en buitenruimtes

De woning beschikt over een gezellige woonkamer en drie slaapkamers. De recent aangelegde stadstuin biedt een verrassend rustige buitenruimte in het bruisende centrum. Ideaal voor wie wil genieten van de zon in privacy.

Waarom je hier wilt wonen:
- Historische charme met moderne afwerking
- Gelegen in het hart van Hoorn
- Instapklaar dankzij recente renovaties
- Drie slaapkamers, én stadstuin
- Nabij winkels, horeca, OV en het IJsselmeer

Ben je op zoek naar een stijlvolle, instapklare woning met karakter op een unieke locatie? Dan is deze woning in Hoorn absoluut het bezichtigen waard.

Aanvaarding medio december 2025
Vraagprijs € 485.000,- k.k.
Lees meer

Kenmerken

Overdracht

Status
verkocht
Aanvaarding
in overleg

Bouw

Soort woning
woonhuis
Soort woonhuis
eengezinswoning
Type woonhuis
geschakelde woning
Aantal woonlagen
3
Bouwjaar
1605
Onderhoud binnen
goed_tot_uitstekend
Onderhoud buiten
goed_tot_uitstekend
Voorzieningen
tv kabel, rookkanaal, dakraam, natuurlijke ventilatie
Isolatie
dakisolatie, muurisolatie, dubbel glas, hr glas

Energie

Energielabel
D
Verwarming
cv ketel
Warm water
cv ketel
C.V.-ketel
gas gestookte combi-ketel uit 2017 van Vaillant, eigendom

Oppervlakten en inhoud

Woonoppervlakte
75 m²
Perceeloppervlakte
70 m²
Inhoud
269 m³
Inpandige ruimte oppervlakte
1 m²

Indeling

Aantal kamers
5

Buitenruimte

Ligging
in centrum
Tuin
achtertuin met een oppervlakte van 14 m² en is gelegen op het oosten

Garage / Schuur / Berging

Garage
geen garage
Parkeergelegenheid
openbaar parkeren

Foto's

Plattegronden

Locatie

Vraag een bezichtiging aan of neem contact met ons op