Zuiderpad 13

Zuiderpad 13

OPPERDOES

verkocht

Ook uw woning of bedrijfspand succesvol verkopen? Neem dan contactmet ons op

Gratis waardebepaling

Omschrijving

Omschrijving:

WONEN AAN HET MOOISTE STRAATJE VAN OPPERDOES.

Met trots mogen wij u presenteren deze zeer fraaie vrijstaande woning. De woning bevindt zich op een perceel van maar liefst 1215m2 en aan doorgaand vaarwater, heerlijk op een mooie zomermiddag er op uit met de boot. En wat te denken van de verzorgde aangelegde tuin met schuur, kinderspeelhuis en overkapping waar u al vroeg in het voorjaar en laat in het najaar kunt genieten van het buitenleven. Ziet u zichzelf hier al zitten op een mooie zomeravond? Verder is de woning voorzien van een heerlijke grote leef keuken met diverse inbouw apparatuur, een aparte woonkamer. De badkamer treft u op de beneden verdieping, dit in combinatie met de forse berging behoort gelijkvloers wonen tot de mogelijkheden.

Indeling

Begane grond
Via de royale entree bereikt u zowel de woonkamer als de leef keuken, de aparte woonkamer met openhaard wordt thans als televisiekamer gebruikt, vanuit de woonkamer heeft u heerlijk uitzicht op de tuin. Aangrenzend aan de woonkamer bevindt zich de badkamer en toilet. Aan de andere kant van de entree komt u de leef keuken binnen welke van alle gemakken is voorzien en waar de hobby kok zich flink kan uitleven, gezellig met vrienden of familie borrelen aan de grote keukentafel. Aansluitend aan de leef keuken komt u in de voormalige koolschuur welke thans in gebruik voor de cv installatie en de was / droog opstelling. Hier kan een vierde slaapkamer gerealiseerd worden waardoor gelijkvloers wonen tot de mogelijkheden behoort.

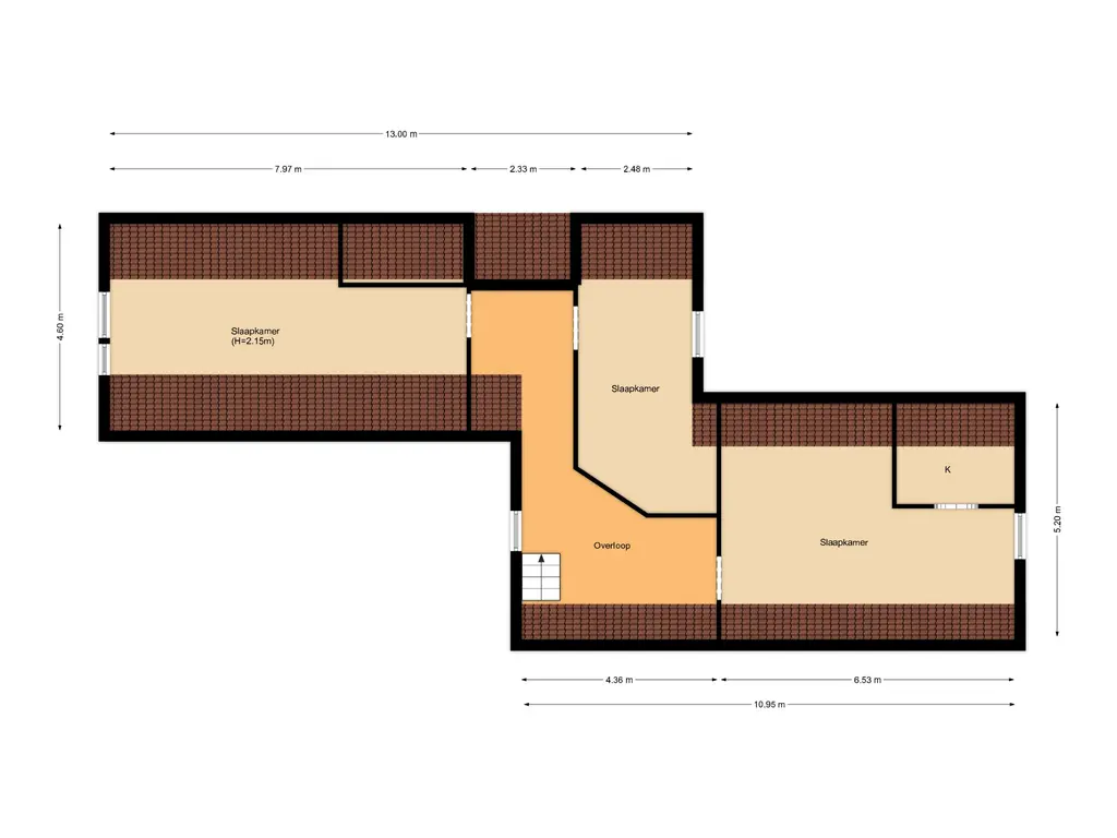
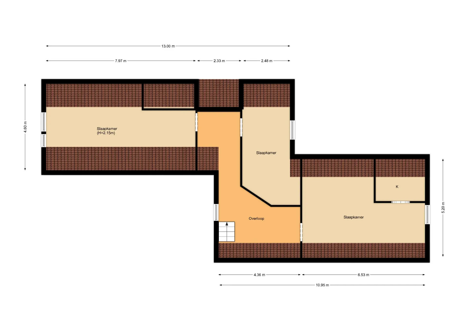
Eerste etage
Via de trap bereikt u de eerste etage waar zich drie fijne slaapkamers bevinden, door de raampartijen heeft u hier veel licht inval. Door de vaste kasten heeft u veel opbergruimte.

Tuin
Zowel aan de voorzijde als de achterzijde van de woning tref u de verzorgde tuinen, een heerlijk zonneterras, en een heerlijke veranda zodat u al vroeg in het voorjaar en laat in het najaar kunt genieten van het buitenleven.

Omgeving
Zoals we u al vertelden wonen aan het mooiste straatje en in het centrum van het dorp Opperdoes is nabij Medemblik, waar alle voorzieningen aanwezig zijn, met de fiets bent u binnen 15 minuten in het gezellige centrum met zijn heerlijke restaurantjes en terrassen. Binnen een paar minuten bent u op de A7 richting Amsterdam of Leeuwarden.

Bent u net als wij enthousiast over deze vrijstaande woning? Bel om een afspraak in te plannen dan geef ik u een persoonlijke rondleiding.

Bijzonderheden:
• Doorgaand vaarwater
• 1215 m2 perceel
• Heerlijke woonkeuken
• Gelijkvloers wonen ((mogelijk)
• Veranda
• Verzorgde tuin
Lees meer

Kenmerken

Overdracht

Status
verkocht
Aanvaarding
in overleg

Bouw

Soort woning
woonhuis
Soort woonhuis
eengezinswoning
Type woonhuis
vrijstaande woning
Aantal woonlagen
2
Bouwjaar
1906
Onderhoud binnen
goed_tot_uitstekend
Onderhoud buiten
goed_tot_uitstekend
Voorzieningen
tv kabel, dakraam, natuurlijke ventilatie
Isolatie
dakisolatie, muurisolatie, gedeeltelijk dubbel glas

Energie

Energielabel
D
Verwarming
cv ketel
Warm water
cv ketel
C.V.-ketel
gas gestookte combi-ketel uit 2021 van remeha, eigendom

Oppervlakten en inhoud

Woonoppervlakte
164 m²
Perceeloppervlakte
1.215 m²
Inhoud
503 m³
Bergruimte oppervlakte
12 m²

Indeling

Aantal kamers
6

Buitenruimte

Ligging
aan water, in woonwijk, vrij uitzicht
Tuin
achtertuin met een oppervlakte van 878 m² en is gelegen op het zuidoosten

Garage / Schuur / Berging

Garage
geen garage
Parkeergelegenheid
openbaar parkeren
Schuur/berging
aangebouwd hout

Foto's

Locatie

Downloads

Vraag een bezichtiging aan of neem contact met ons op